Vamzdžio atnešimas ant stogo - tai užduotis, kuri iš pirmo žvilgsnio gali pasirodyti nesudėtinga. Tačiau praktiškai viskas yra daug sudėtingiau: vėdinimo praėjimas per stogą turi būti atliekamas labai atsargiai ir laikantis visų techninių reikalavimų. Galų gale turi būti išlaikytas stogo dangos vientisumas ir užtikrintas sandarumas.
Mes jums pasakysime, kaip įrengti stogo angą pagal statybos kodeksus. Straipsnyje, kurį pristatėme, analizuojamos dvi galimybės: kieto ir minkšto tipo dangai. Remdamiesi mūsų patarimais, galite puikiai atlikti darbą patys. Žinoma, ten, kur vėdinimo vamzdis ar kitas vamzdis eina per stogą, būtina užtikrinti pakankamą sandarumą, kad drėgmė nepatektų į pastatą. Tuo pačiu metu šis mazgas neturėtų kliudyti krituliams nuo stogo paviršiaus. Kitas svarbus dalykas yra patikimos šilumos izoliacijos prieinamumas.
Vamzdžio viršutinę dalį nuo drėgmės reikia apsaugoti deflektoriumi. Yra tam tikri reikalavimai dėl ventiliacijos vamzdžio ilgio, suprojektuoto taip, kad būtų užtikrintas pakankamas sukibimas konstrukcijos viduje, nors jie nėra tokie griežti kaip dūmtraukių normos. Dažnai oro mainai per ventiliaciją užtikrinami jėga, naudojant išmetimo ventiliatorių, kuris taip pat įrengiamas šalia sankryžos. Šis mechanizmas taip pat turėtų būti patikimai apsaugotas nuo kritulių poveikio ir kitų natūralių veiksnių. Be to, privaloma pasirūpinti prietaiso įžeminimu.
Dėl netinkamo šio įrenginio montavimo dažnai blogai pašalinami krituliai iš paviršiaus, o tai gali anksti sugadinti stogo dangą. Daug problemų gali sukelti daugiabučio namo ventiliacijos kanalas, jei jis eina ant stogo per rampą. Be vėdinimo kanalo praėjimo per stogą surinkimo, gali prireikti papildomų elementų, kurie apsaugo konstrukciją nuo kritulių, pagerina drėgmės pašalinimą ir kt.
Daug geriau, jei svetainė yra išilgai rampos, todėl susidarys mažiau kliūčių vandeniui nutekėti. Optimali padėtis yra didelio perėjimo mazgo vieta palei kraigą. Ši parinktis pašalina poreikį įdiegti papildomus elementus, kurie sumažina vėdinimo vamzdžio atsparumą kritulių suartėjimui.
Rimta montavimo klaida laikoma situacija, kai priekinis prijuostė yra po stogo danga. Prijuostė yra tokia konstrukcija, kuri suteikia stogo tvirtumą prie vamzdžio sienų. Jei apatinė prijuostės dalis atnešta po stogu, vanduo nutekės į tarpą, patenka į stogo dangą ir tada į palėpės erdvę.
Vėdinimo sistemos perėjimo bloko įrengimo principai taip pat gali būti naudojami montuojant kitus panašius įtaisus, pavyzdžiui, dūmtraukius.
Šilumos izoliacijos sluoksnio nebuvimas prisideda prie temperatūros skirtumo atsiradimo, kuris prisideda prie kondensato susidarymo ant ventiliacijos vamzdžių paviršiaus. Laikui bėgant tokia padėtis gali pakenkti konstrukcijos medžiagai, susidaryti pelėsiams, oksidams, rūdims ir kt.
Išorinė ventiliacijos vamzdžio dalis, išsikišusi virš stogo, turi būti apsaugota apsauginiu dangteliu nuo drėgmės ir kritulių.
Senuose vėdinimo kanaluose dažniausiai pateikiamas vadinamasis „ūdra“ - sutirštėjimas, kuris leidžia šildomam orui šiek tiek atvėsti prieš einant į stogą. Dėl to oro temperatūros ir stogo dangų komunikacijų skirtumas bus mažesnis, o tai sumažins kondensato tikimybę.
Šiuolaikiniuose namuose naudojami prijuostės, kurių pagalba tarpas tarp vamzdžio ir stogo yra visiškai uždaromas. Pjūviai, skirti prijuostėms montuoti, formuojami šlifuokliu. Metalinius ir plastikinius vamzdžius galima izoliuoti naudojant mineralinę vatą ar kitą tinkamą medžiagą.
Apvaliam ventiliacijos kanalui geriau pasirinkti pereinamojo mazgo pramoninį modelį, nes tokį prietaisą patiems pasigaminti nebus lengva.

Kartais šiems tikslams naudojama medinė ar metalinė dėžė. Projektavimas vėdinimo sistema, turėtumėte nedelsdami apsvarstyti praėjimo per stogą išdėstymą. Ekspertai pažymi, kad vamzdį su stačiakampiu ar kvadratiniu pjūviu išvesti į išorę yra daug lengviau nei apvalią konstrukciją.
Norint užtikrinti pakankamai sandarų ventiliacijos vamzdžio pritvirtinimą prie stogo medžiagos, paprastai naudojama kvadratinė įvorė, kuri yra dėvima ant vamzdžio viršaus. Jis užpildomas ugniai atspariomis medžiagomis, daugiausia smėliu ar mažu keramzitu, todėl ši konstrukcija vadinama „smėlio dėže“.
Virš stogo būtina pašalinti ventiliaciją iki aukščio, lygaus aukščiui kamino vamzdžiai. Taigi jūs turite užtikrinti stabilią sukibimą. Ši vertė priklauso nuo kamino atokumo nuo kraigo šonkaulio.
Vėdinimo praėjimo mazgas ir kaminas per stogą atliekamas įrengus ventiliacijos sistemą, tačiau prieš įrengiant stogo dangą ir klojant dangą.
Praėjimo įrenginys turi būti tvirtai pritvirtintas prie visų stogo elementų. Atkreipkite dėmesį į atstumą tarp vamzdžio krašto ir pritvirtinto virš jo. deflektorius. Jis turėtų būti toks didelis, kad oro masės, einančios per ventiliacijos kanalą, galėtų laisvai judėti.
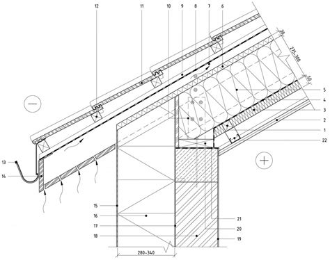
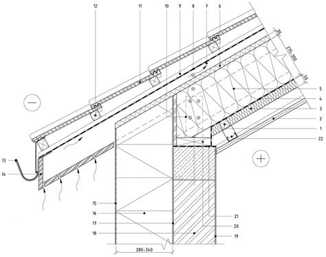
Kietos stogo dangos
Norėdami įrengti ventiliacijos kanalo praėjimo pro stogą mazgą, padengtą standžiomis stogo dangos medžiagomis (čerpėmis, šiferiu, gofruota lenta ir kt.), naudojama kvadratinė konstrukcija, tokia kaip smėlio dėžė, tarpai aplink kuriuos užpildomi nedegia šilumą izoliuojančia medžiaga. Jis turėtų būti šiek tiek flanšuotas, kad apsaugotų šilumos izoliaciją nuo sąlyčio su drėgme tiesiai ant vamzdžio.
Aplink metalinę stačiakampę rankovę reikia sumontuoti keturias prijuostės dalis, kurios galų gale iš visų pusių uždengia vamzdžio, esančio prie stogo, atramos liniją.
Pirmiausia sumontuojama apatinė dalis, tada sumontuojamos šoninės dalys, po kurių viršuje galite įdėti prijuostės elementą. Horizontali prijuostės dalies dalis, esanti virš likusios, turėtų būti dedama po stogo danga. Likusi dalis, t.y. šoniniai ir apatiniai elementai sumontuoti ant stogo viršaus.
Prieš pradedant montuoti pramoninį bloką, skirtą vėdinimui per stogą, rekomenduojama ištirti šio elemento įtaisą ir atsižvelgti į gamintojo rekomendacijas.
Kaklaraištis yra ilgas stogo latakas, kurį turėtų numatyti stogo konstrukcija. Gana dažnai montuojant vėdinimo kanalą galima išsiversti be tokio elemento. Norėdami išsiaiškinti šį klausimą, rekomenduojama pasikonsultuoti su patyrusiu stogdengiu.
Prijuostę galima įsigyti jau paruošto, tačiau tokį dizainą pasidaryti nėra sunku. Norėdami tai padaryti, naudokite 0,5 mm storio cinkuotą stogo dangą. Nepageidautina naudoti storesnę stogo dangos medžiagą, nes bus sunkiau sulenkti, kad suteiktumėte reikiamą formą.

Oro temperatūros skirtumas ventiliacijos viduje ir išorėje gali sukelti kondensaciją konstrukcijos viduje, todėl rekomenduojama izoliuoti dalį ventiliacijos kanalo.
Tačiau šiems tikslams nereikėtų imti plonos skardos, nes ji nėra pakankamai patikima. Prijuostės dydis turėtų atitikti medžiagos, naudojamos stogui, bangos dydį.
Pereinamojo elemento montavimui po metalinėmis plytelėmis vertikali prijuostės dalis yra pagaminta kaip dvi stogo dangos bangos, o horizontalioji dalis pagaminta iš trijų kartų bangos ilgio.
Šie matmenys yra skirti sukurti pakankamai didelę prijuostę prie horizontalios vamzdžio plokštumos ir nuožulnios dangos plokštumos, kad būtų išvengta net atsitiktinių purslų po stogo danga. Prijuostės taip pat montuojamos su elemento sutapimu, pritvirtintu apačioje esančios dalies viršuje.
Manoma, kad optimalus sutapimas yra lygus vieno iš jų pločiui, tačiau ši padėtis ne visada pasiekiama. Taigi, viršutinio ir šoninio prijuostės elementų sutapimas bus paslėptas po stogo medžiaga, sunku sumontuoti dalis teisingoje vietoje.
Bet, pritvirtinus apatinę ir šoninę prijuostės dalis, tokios problemos nėra, rekomenduojama tiksliai išlaikyti reikiamus matmenis. Jei reikia, prijuostės dalių matmenis po montavimo galima sureguliuoti metalinėmis žirklėmis.
Flanšas turėtų būti atliekamas tik su viršutiniais ir šoniniais elementais. Dugnui toks sureguliavimas nėra būtinas, nes drėgmė iš jo nusileidžia į stogo nuolydį ir, galbūt, į kaklaraištį.
Jei ventiliacijos kanalo perėjimo mazgas sumontuotas teisingai, erdvė po stogu bus patikimai apsaugota nuo kritulių ir drėgmės.
Šis elementas gali būti montuojamas ant stogo, kad būtų galima kuo geriau pašalinti drėgmę. Esant tokiai situacijai, apatinėje prijuostės dalyje reikia padaryti nedidelį lenkimą kaklaraiščio link. Be to, reikalingas apatinis flanšas.
Minkštų stogų stogo konstrukcijos
Minkštų stogų stogo konstrukcijos turi keletą savybių, kurios atsispindi vėdinimo kanalo įrengimo tvarkoje. Tokio stogo šlaitai paprastai atliekami su 12º ir didesniu nuolydiu.
Gabalinė stogo medžiaga nėra tinkama išdėstyti konstrukcijas, kurių nuolydis yra žemas, kaip Jis pasižymi daugybe jungčių ir siūlių. Etapo metu reikia atsižvelgti į pravažiavimo bloko išdėstymą šlaitiniame stoge ventiliacijos dizainaspasirinkti geriausią variantą.
Įrengdami praėjimo bloką, dalis, paskirstyta ant stogo kraigo, dedama po stogo dangos medžiagos lakštu, kad drėgmė nepatektų į tarpus ir nepažeistų izoliacijos.
Prieš pradėdami montuoti ventiliacijos praėjimą, turėtumėte išsiaiškinti, į kurią pusę stogas yra linkęs. Jei pravažiavimo įtaisas yra sumontuotas ant kieto stogo prieš pradedant stogo dangą, tokiu atveju pirmiausia turite išrauti pagrindinį stogo dangos plotą.
Po to pagaminkite šiluminį mazgą ir įdiekite šilumą izoliuojančias medžiagas. Tolesni veiksmai priklauso nuo stogo mazgo formos. Elementui, turinčiam apvalų skerspjūvį, reikės įdiegti tik dvi dalis, tačiau kvadrato konfigūracijos mazgas pritvirtintas naudojant keturis komponentus.
Vietoj aukščiau aprašytų prijuosčių čia jums reikės stogo dangos medžiagos paviršiaus. Jie pritvirtinti ant stogo ir perėjos mazgo. Tvirtinimo procesas prasideda nuo apačios, tada nuo vidurio iki kraštų, po kurio pritvirtinama viršutinė pamušalo dalis.
Vėdinimo vamzdžių montavimo aukštis virš stogo lygio yra tas pats kaip ir dūmtraukio kanalų montavimui. Paprasčiau tariant, stovų aukštis imamas lygus dūmtraukių aukščiui. Dažnai jie išdėstomi netoliese, toje pačioje kasykloje.

Atskiri elementai montuojami tokiu būdu: pirmiausia apatinis, tada šonas, atlikite montavimą, pritvirtindami viršutinį pamušalą. Žinoma, visos šios detalės turėtų šiek tiek sutapti, tačiau jos matmenims keliami reikalavimai nėra tokie griežti kaip montuojant praėjimą po kieta stogo danga.
Nuo šlaitinio stogo greitai ir reguliariai nukreipiami atmosferos vandens srautai, todėl šioje situacijoje reikšmingo sutapimo nereikia. Tačiau nedidelis žiemos kritulių kiekis ant stogo gali sukelti dar vieną problemą. Siūlėse stogo medžiaga ilgą laiką liečiasi su drėgme.
Minkštos stogo dangos medžiagos paprastai klojamos ant šlaitų su nedideliu nuolydiu. Bet kokiu atveju reikia atsižvelgti į nuolydžio kryptį.
Norėdami išvengti šios situacijos, turėtumėte atkreipti ypatingą dėmesį į lankstaus stogo įrengimo kokybę, tiksliai laikytis visų įrengimo technologijos reikalavimų. Paprastai tariant, stogo dangos lakštai turėtų būti tinkamai šildomi ir saugiai suspausti. Tokiu atveju galite naudoti pjaustymo techniką arba naudoti specialų volelį, skirtą juostinei juostai sukti.
Jie apklijuoja lapą pirštinės pagalba, į kurią įdėtas odinis skirtukas. Volelis yra tinkamesnis dirbant su plonomis stogo dangų medžiagomis. Jei naudojama daugiasluoksnė medžiaga, didelio mazgo montavimas paprastai atliekamas naudojant dviejų sluoksnių perdangas.
Mažam elementui galite naudoti tik vieną sluoksnį. Apvalų mažo skersmens praėjimą sudaro dvi didelės plokštės su horizontaliai sulenkta „sijonu“.
Pirmiausia pritvirtinkite apatinį elementą, tada viršutinį. Montavimo metu reikia šiek tiek priveržti įkaitintos medžiagos lakštą, kad būtų užtikrintas patikimas ventiliacijos komunikacijos aprėptis ir būtinas persidengimas.
Standartinio projekto įrengimo ypatybės
Pramoninės produkcijos vėdinimo komunikacijų prasiskverbimo mazgai atliekami pagal GOST-15150 reikalavimus. Manoma, kad oro temperatūra susisiekimo vamzdžio viduje neturėtų viršyti 80 laipsnių, o srauto drėgmė turėtų būti 60%.
Vieta, kur ventiliacijos vamzdis eina per stogą, paprastai būna kvadrato formos, į tai reikia atsižvelgti renkantis ortakio formą ir sankryžos tipą.
Norint apskaičiuoti praėjimo mazgą, reikia atsižvelgti į tokius rodiklius kaip rampos nuolydžio kampas ir atstumas nuo elemento iki stogo kraigo.
Tipišką perėjimo mazgą galima sudaryti pagal šiuos variantus:
- su kondensato žiedu arba be jo;
- su izoliuotu arba įprastu vožtuvu arba be vožtuvo;
- su rankiniu ar mechaniniu vožtuvo valdymu;
- su apsauga nuo kibirkšties ar be jos ir kt.
Išvardytos parinktys gali skirtis priklausomai nuo situacijos. Pvz., Nereikia montuoti mechaninio vožtuvo, jei sistema yra stabili ir nereikia jos nuolat reguliuoti. Taip pat galima pagaminti specialios gręžimo vietą.
Pramoninėse įmonėse paplitę prasiskverbimo per stogą mazgai yra labai įvairūs, jie parenkami atsižvelgiant į vamzdžio dydį ir stogo savybes.

Šio tipo dizainai yra pagaminti iš polimerų, nerūdijančio plieno, kurio storis yra 0,5-0,8 mm, ir juodo plieno, 1,5-2 mm. Paruošto perėjimo mazgo dalis gali būti apvali, ovali, kvadratinė arba stačiakampė. Konkretus modelis parenkamas atsižvelgiant į stogo dangos medžiagos tipą ir ventiliacijos vamzdžio parametrus.
Nors užsienio produkcijos praėjimo taškai dažniausiai būna aukštos kokybės, jie ne visada pritaikomi vietinėms klimato sąlygoms, todėl neapsunkina atidžiai išstudijuoti vietinių gamintojų pasiūlymai.
Paprastai jie ženklinami taip:
- raidės UP su indeksu nuo 1 iki 10 žymi projektą be kondensatoriaus žiedo ir vožtuvo;
- indeksai nuo 2 iki 10 rodo įtaisus su rankiniu vožtuvu, be žiedo;
- Pavadinimas UPZ priskiriamas prietaisams su specialia armatūros pavaros platforma, kurią numato dizainas.
Visame paruoštų pereinamųjų mazgų modelių komplekte yra įmontuoti varžtai ir veržlės, kurie pritvirtinami prie medinių konstrukcijų, gelžbetoniniai stiklai, skirti montuoti.
Šilumos izoliacijai sėkmingai naudojama mineralinė vata, kurią rekomenduojama apsaugoti stiklo pluošto sluoksniu.
Jei reikia įrengti ventiliacijos bloką su apsauginiu vožtuvu, atkreipkite dėmesį į tam skirtą vamzdį. Prie šio elemento apatinio flanšo turi būti pritvirtintas vožtuvas. Viršutinis flanšas skirtas pritvirtinti ortakio padėtį. Spaustukai ir kronšteinai naudojami kaip petnešų tvirtinimo elementai.
Norėdami dar labiau apsaugoti ventiliacijos keltuvą nuo drėgmės, turite naudoti sijoną. Kondensato kolektorius privirinamas prie vamzdžio. Jis skirtas pašalinti drėgmę iš oro masių, kurios juda per ventiliacijos kanalą. Vožtuvui valdyti naudojamas mechaninis mazgas, kuris turėtų būti montuojamas ant jam skirtos lentynos.
Šis elementas neturėtų būti montuojamas šalia kondensato surinkimo žiedo, kad būtų išlaikytas visų grimzdimo elementų vientisumas.
Kaip išleisti vandentiekį per stogą | Garažo konversija į butą | 11 serija
Įprasti agregatų modeliai įrengiami prieš pradedant stogo dengimo darbus: pirmiausia įrengiami vėdinimo sistemos ortakiai, po to praėjimas, o po to - stogas. Baigus darbus rekomenduojama užsandarinti visas jungtis, įskaitant surinkimo elementų sandūrą su stogo danga.
Norėdami tai padaryti, turėtumėte:
- Nuvalykite vamzdžio ir stogo paviršius nuo užteršimo.
- Užsandarinkite apatinę ortakio dalį ir gretimą stogo plotą folijos popieriumi.
- Užpildykite skyles sandarinimo mišiniu.
Šios priemonės padės apsaugoti...
Dažnai užsakovai, projektuotojai ar statybininkai neįvertina vandens nuvedimo sistemos svarbos bendrame stogo įrengimo kontekste ir pasirenka netinkama įlają. Vertinamas ir skaičiuojamas stogo konstrukcijos mazgas su sudėtinėmis medžiagomis, kai vandens nuvedimas paliekamas antram ar trečiam planui. Trumpai apžvelgsime „bėgančio“ stogo priežastis. Dažniausiai stogas „bėga“ ne per tipinį konstrukcijos mazgą, o per specifinius mazgus (parapetas su fasadu, viršstoginių konstrukcijų ir įrengimų hidroizoliavimas) ar įlajos ir ventiliacinių kaminėlių įrengimo vietose. Pirmu atveju pasirenkami netinkami mazgai arba būna netinkamas jų įrengimas. Atsisiuntimų puslapyje rasite bylas su stogo dangų ir apšiltinimo medžiagų gamintojų įrengimo schemomis. Įlajos įrengimo atveju pasirenkami ne tie produktai arba netinkamas sprendimas.
1) Išgręžiama ar išpjaunama skylė pagrinde (betonas, profpaklotas ar medis).
4) Užtikrinamas įlajos ir garo izoliacijos sukibimas.
Ką duoda „dvigubos įlajos“ įrengimo schema? 1) Įlaja tvirtai instaliuota ant pagrindo ir nejuda - užtikrinamas sandarumas su nutekėjimo vamzdžiais. Įvertinus šiuos privalumus, „dviguba kaina“ nėra didelė bendroje darbų įrengimo sąmatoje.